Projekty | Domy parterowe | Domy z użytkowym poddaszem | Domy letniskowe | Domy "na zgłoszenie" |
Domy dla biznesu > JOANNA - budynek biurowy
powrót do listy|
cena: 2460zł
|
zamów projekt |
Widoki
UWAGA!
CZAS OCZEKIWANIA NA DOKUMENTACJĘ – 4 TYGODNIE OD DNIA ZAMÓWIENIA.
Powierzchnia użytkowa – 197.1m2
minimalna powierzchnia działki – 610.0 m2
Niewielki budynek usługowy, przewidziany do wykorzystania jako biuro lub mały sklep osiedlowy.
Rzuty
Elewacje
|
|
ELEWACJA FRONTOWA |
|
|
ELEWACJA BOCZNA |
|
|
ELEWACJA TYLNA |
|
|
ELEWACJA BOCZNA 2 |
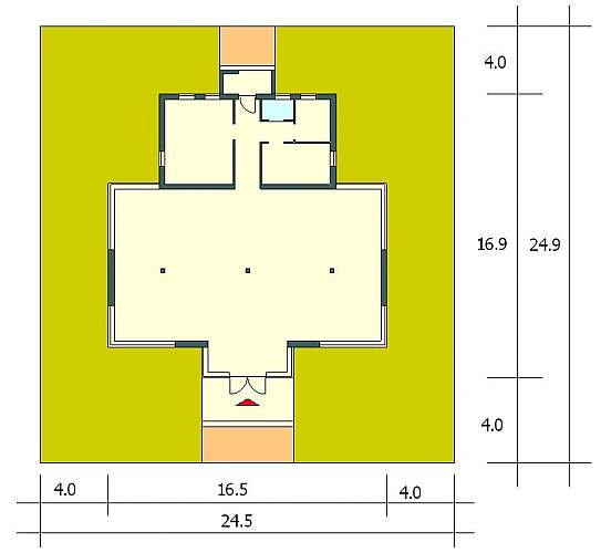
Działka
|
|
MINIMALNE WYMIARY DZIAŁKI |

