Projekty | Domy parterowe | Domy z użytkowym poddaszem | Domy letniskowe | Domy "na zgłoszenie" |
Domy dla biznesu > AURELIA - budynek biurowy
powrót do listy| cena: 2460zł | zamów projekt | 
Widoki
UWAGA!
CZAS OCZEKIWANIA NA DOKUMENTACJĘ – 4 TYGODNIE OD DNIA ZAMÓWIENIA.
Powierzchnia użytkowa –  296.8 m2
Powierzchnia całkowita –  356.8 m2
Powierzchnia zabudowy –  262.9 m2
Powierzchnia dachu –  330.0 m2
Kubatura –  1 407.2 m3
Wysokość budynku – 8.45 m
Kąt nachyl. połaci dach. – 15 stopni
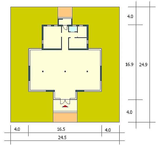
Minimalna szerokość działki – 24.5 m
Minimalna pow. działki  –  610.0 m2
Ściany zewnętrzne – YTONG 24 cm
Stropy – płyta żelbetowa
Konstrukcja dachu – więźba drewniana
Pokrycie dachu – dachówka ceramiczna
Średniej wielkości, piętrowy budynek usługowy o współczesnej architekturze przewidziany do wykorzystania jako biuro , agencja reklamowa lub przedstawicielstwo handlowe.
Rzuty
Elewacje
|  | ELEWACJA FRONTOWA | 
|  | ELEWACJA BOCZNA 1 | 
|  | ELEWACJA TYLNA | 
|  | ELEWACJA BOCZNA 2 | 
Działka
|  | MINIMALNE WYMIARY DZIAŁKI | 

