Projekty | Domy parterowe | Domy z użytkowym poddaszem | Domy dla biznesu | Domy letniskowe |
Domy "na zgłoszenie" > JG 015 JESIEŃ
powrót do listy|
cena: 984zł
|
zamów projekt |
Widoki
Dom parterowy z antresolą, zaprojektowany
w technologii lekkiego szkieletu drewnianego
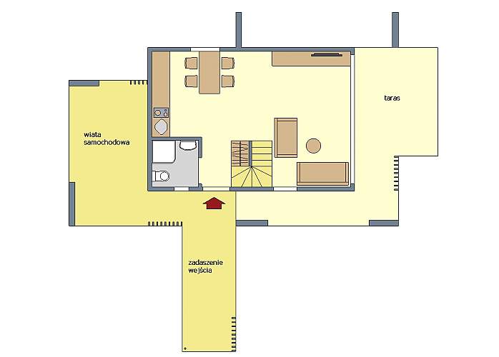
o powierzchni zabudowy 35 m2.
Szerokość budynku 700cm
Długość budynku 500 cm
Wysokość budynku 664 cm
Powierzchnia użytkowa 59.7 m2
Wygodny, całoroczny dom dla trzech – czterech osób.
Niezaprzeczalnym atutem jest możliwość realizacji elementów dodatkowych w rodzaju wiaty samochodowej a także zadaszenia wejścia czy tarasu.
CO ZAWIERA NASZ PROJEKT ?
W skład każdego projektu oferowanego do sprzedaży wchodzi:
Opis techniczny
Rzut parteru i ew. antresoli
Przekrój z opisem warstw
Elewacje z opisami
Rysunki warsztatowe konstrukcji szkieletowej
Dyspozycje w zakresie instalacji elektrycznej
Dyspozycje w zakresie instalacji wod. – kan,.
Specyfikacja elementów drewnianych konstrukcji
Zestawienie materiałów budowlanych
Rzuty
Elewacje
|
|
Działka
|
|
rzut domu JESIEŃ z elementami dodatkowymi |

