Projekty | Domy parterowe | Domy z użytkowym poddaszem | Domy dla biznesu | Domy letniskowe |
Domy "na zgłoszenie" > JG 018 LETNIA PODRÓŻ
powrót do listy|
cena: 984zł
|
zamów projekt |
Widoki
Dom parterowy z antresolą, zaprojektowany
w technologii lekkiego szkieletu drewnianego
o powierzchni zabudowy 35 m2.
Szerokość budynku 421cm
Długość budynku 830 cm
Wysokość budynku 620 cm
Powierzchnia użytkowa 56,8 m2
wygodny, całoroczny dom dla trzech osób.
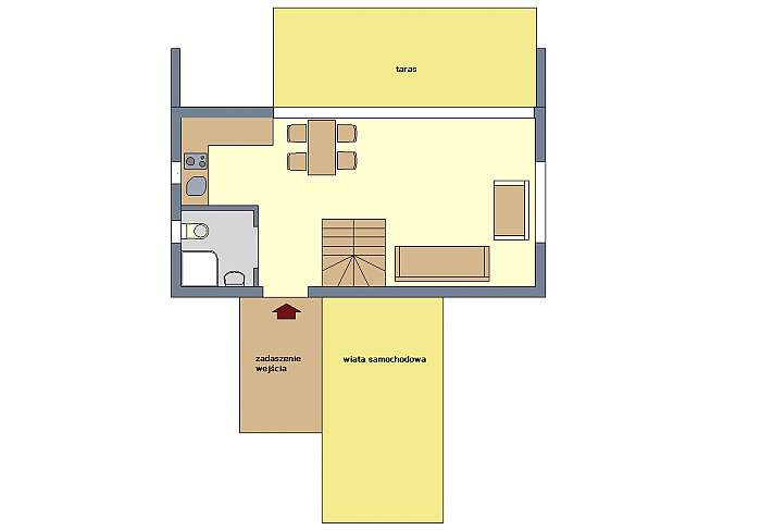
Niezaprzeczalnym atutem jest możliwość realizacji elementów dodatkowych w rodzaju wiaty samochodowej a także zadaszenia wejścia czy tarasu.
antresola
4. hol 3,1 m2
5. pokój 12.6 m2
6. pokój 11,8 m2
* powierzchnia liczona w obrysie podłogi
CO ZAWIERA NASZ PROJEKT ?
W skład każdego projektu oferowanego do sprzedaży wchodzi:
Opis techniczny
Rzut parteru i ew. antresoli
Przekrój z opisem warstw
Elewacje z opisami
Rysunki warsztatowe konstrukcji szkieletowej
Dyspozycje w zakresie instalacji elektrycznej
Dyspozycje w zakresie instalacji wod. – kan,.
Specyfikacja elementów drewnianych konstrukcji
Zestawienie materiałów budowlanych
Rzuty
Elewacje
|
|
Działka
|
|
rzut domu z elementami dodatkowymi |

