Projekty | Domy parterowe | Domy z użytkowym poddaszem | Domy dla biznesu | Domy letniskowe |
Domy "na zgłoszenie" > JG 012 GRUDZIEŃ
powrót do listy|
cena: 984zł
|
zamów projekt |
Widoki
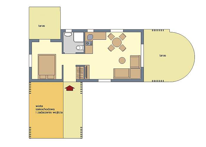
Dom parterowy z antresolą, zaprojektowany
w technologii lekkiego szkieletu drewnianego
o powierzchni zabudowy 35 m2.
Szerokość budynku 412cm
Długość budynku 896 cm
Wysokość budynku 404 cm
Powierzchnia użytkowa 29,3 m2
wygodny, całoroczny dom dla dwóch osób.
Niezaprzeczalnym atutem jest możliwość realizacji elementów dodatkowych w rodzaju wiaty samochodowej a także zadaszenia wejścia czy tarasu.
CO ZAWIERA NASZ PROJEKT ?
W skład każdego projektu oferowanego do sprzedaży wchodzi:
Opis techniczny
Rzut parteru i ew. antresoli
Przekrój z opisem warstw
Elewacje z opisami
Rysunki warsztatowe konstrukcji szkieletowej
Dyspozycje w zakresie instalacji elektrycznej
Dyspozycje w zakresie instalacji wod. – kan,.
Specyfikacja elementów drewnianych konstrukcji
Zestawienie materiałów budowlanych
Rzuty
Elewacje
|
|
elewacje |
Działka
|
|
rzut domu z elementami dodatkowymi |

