Projekty | Domy parterowe | Domy z użytkowym poddaszem | Domy dla biznesu | Domy "na zgłoszenie" |
Domy letniskowe > NIEGOCIN
powrót do listy| cena: 1230zł | zamów projekt | 
Widoki
POW. UŻYTKOWA 59.8 m2
POW. MIESZKALNA 47.0 m2
POW. ZABUDOWY 44.0 m2
KUBATURA 266.0 m3
WYSOKOŚĆ BUDYNKU 6,68 m
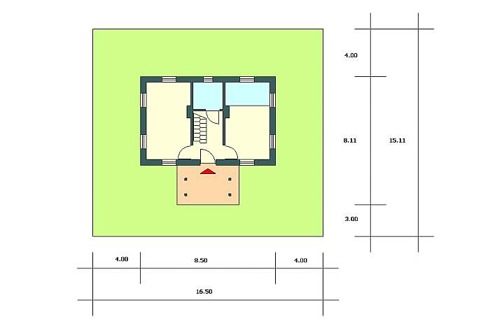
MINIMALNA SZER. DZIAŁKI 16.5 m
ŚCIANY TRÓJWARSTWOWE, CERAMIKA
STROP ŻELBETOWY
DACH DWUSPADOWY, KĄT NACH. 450, WIĘŹBA DREWNIANA KROKWIOWO – JĘTKOWA, POKRYCIE DACHÓWKĄ
Parterowy dom letni z użytkowym poddaszem. Parter NIEGOCINA to część dzienno – wypoczynkowa z kominkiem oraz łazienka. Poddasze zawiera dwa pokoje sypialne.
Rzuty
Elewacje
|  | ELEWACJA FRONTOWA | 
|  | ELEWACJA BOCZNA | 
|  | ELEWACJA TYLNA | 
|  | ELEWACJA BOCZNA | 
Działka
|  | MINIMALNE WYMIARY DZIAŁKI | 

