Projekty | Domy parterowe | Domy z użytkowym poddaszem | Domy dla biznesu | Domy "na zgłoszenie" |
Domy letniskowe > SKOTNIKI
powrót do listy|
cena: 1230zł
|
zamów projekt |
Widoki
POW. UŻYTKOWA 71.0 m2
POW. MIESZKALNA 59.3 m2
POW. ZABUDOWY 69.3 m2
KUBATURA 379.0 m3
WYSOKOŚĆ BUDYNKU 6.83 m
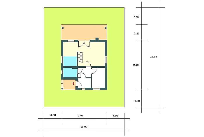
MINIMALNA SZER. DZIAŁKI 16.0 m
ŚCIANY TRÓJWARSTWOWE, CERAMIKA
STROP ŻELBETOWY
DACH DWUSPADOWY, KĄT NACH. 40, WIĘŹBA DREWNIANA KROKWIOWO – JĘTKOWA, POKRYCIE DACHÓWKĄ
Parterowy dom letniskowy z antresolą na poddaszu. Strefa dzienno – wypoczynkowa oraz łazienka i pokój sypialny , zajmują parter budynku. Antresola to jednoprzestrzenne pomieszczenie sypialne.
Rzuty
Elewacje
|
|
ELEWACJA FRONTOWA |
|
|
ELEWACJA BOCZNA |
|
|
ELEWACJA TYLNA |
|
|
ELEWACJA BOCZNA |
Działka
|
|
MINIMALNE WYMIARY DZIAŁKI |

