Projekty | Domy parterowe | Domy z użytkowym poddaszem | Domy dla biznesu | Domy "na zgłoszenie" |
Domy letniskowe > WETLINA
powrót do listy| cena: 1230zł | zamów projekt | 
Widoki
POW. UŻYTKOWA 76.6 m2
POW. MIESZKALNA 47.0 m2
POW. ZABUDOWY 76.1 m2
KUBATURA 328.0 m3
WYSOKOŚĆ BUDYNKU 7.73 m
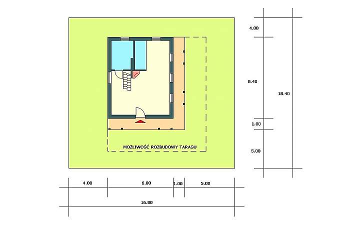
MINIMALNA SZER. DZIAŁKI 16.8 m
ŚCIANY DWUWARSTWOWE, BETON KOMÓRKOWY
STROP ŻELBETOWY
DACH DWUSPADOWY, KĄT NACH. 50, WIĘŹBA DREWNIANA KROKWIOWO – JĘTKOWA, POKRYCIE DACHÓWKĄ
Parterowy dom letniskowy z użytkowym poddaszem. Strefa dzienno – wypoczynkowa oraz łazienka zajmują parter WETLINY. Na poddaszu zaprojektowano jednoprzestrzenne pomieszczenie sypialne, które można zaaranżować zgodnie z indywidualnymi wymaganiami.
Rzuty
Elewacje
|  | ELEWACJA FRONTOWA | 
|  | ELEWACJA BOCZNA | 
|  | ELEWACJA BOCZNA | 
|  | ELEWACJA TYLNA | 
Działka
|  | MINIMALNE WYMIARY DZIAŁKI | 

