Projekty | Domy parterowe | Domy dla biznesu | Domy letniskowe | Domy "na zgłoszenie" |
Domy z użytkowym poddaszem > BIŁGORAJ
powrót do listy|
cena: 1845zł
|
zamów projekt |
Widoki
POW. UŻYTKOWA 149.7 m2
POW. MIESZKALNA 88.6 m2
POW. ZABUDOWY 102.6 m2
KUBATURA 677.0 m3
WYSOKOŚĆ BUDYNKU 7.51 m
MINIMALNA SZER. DZIAŁKI 21.0 m2
ŚCIANY DWUWARSTWOWE, BETON KOMÓRKOWY
STROPY PŁYTA ŻELBETOWA
DACH PULPITOWY, KĄT WEWN. NACH. 10,
WIĘŹBA DREWNIANA KROKWIOWO – JĘTKOWA,
POKRYCIE DACHÓWKĄ
BIŁGORAJ to średniej wielkości piętrowy dom jednorodzinny, o zdecydowanie nowoczesnej architekturze.
Parter to część gospodarcza z przedsionkiem, wiatą garażową, pomieszczeniem wielofunkcyjnym i WC oraz część dzienno – wypoczynkowa, na którą składają się kuchnia, jadalnia i pokój rodzinny z kominkiem. Na uwagę zasługuje pomieszczenie , zlokalizowane w rejonie wejścia do budynku, które może pełnić funkcje dodatkowej sypialni, pokoju gościnnego lub gabinetu do pracy.
Na piętrze zlokalizowano dwa pokoje dziecinne z garderobami , łazienkę oraz kompaktową sypialnię rodziców z własną garderobą i łazienką.
Rzuty
Elewacje
|
|
ELEWACJA FRONTOWA |
|
|
ELEWACJA BOCZNA |
|
|
ELEWACJA OGRODOWA |
|
|
ELEWACJA BOCZNA |
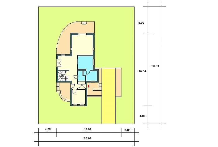
Działka
|
|
MINIMALNE WYMIARY DZIAŁKI |

