Projekty | Domy parterowe | Domy dla biznesu | Domy letniskowe | Domy "na zgłoszenie" |
Domy z użytkowym poddaszem > KĘTRZYN
powrót do listy|
cena: 1845zł
|
zamów projekt |
Widoki
POW. UŻYTKOWA 167.9 m2
POW. MIESZKALNA 83.4 m2
POW. ZABUDOWY 127.6 m2
KUBATURA 767.0 m3
WYSOKOŚĆ BUDYNKU 7.59 m
MINIMALNA SZER. DZIAŁKI 21.8 m
ŚCIANY DWUWARSTWOWE, BETON KOMÓRKOWY
STROPY PŁYTA ŻELBETOWA
DACH WIELOSPADOWY, KĄT NACH. 25,
WIĘŹBA DREWNIANA KROKWIOWO – JĘTKOWA,
POKRYCIE DACHÓWKĄ
KĘTRZYN to średniej wielkości piętrowy dom jednorodzinny, o architekturze będącej połączeniem klasyki i nowoczesności.
Parter to część gospodarcza z przedsionkiem, garażem, dwoma pomieszczeniami wielofunkcyjnymi i WC oraz część dzienno – wypoczynkowa, na którą składają się kuchnia,, jadalnia i pokój rodzinny z kominkiem. Na uwagę zasługuje pomieszczenie , zlokalizowane w rejonie wejścia do budynku, które może pełnić funkcje dodatkowej sypialni, pokoju gościnnego lub gabinetu do pracy.
Na piętrze zlokalizowano dwa pokoje dziecinne , łazienkę oraz kompaktową sypialnię rodziców z własną garderobą i łazienką.
Rzuty
Elewacje
|
|
ELEWACJA FRONTOWA |
|
|
ELEWACJA BOCZNA |
|
|
ELEWACJA OGRODOWA |
|
|
ELEWACJA BOCZNA |
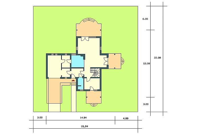
Działka
|
|
MINIMALNE WYMIARY DZIAŁKI |

