Projekty | Domy parterowe | Domy dla biznesu | Domy letniskowe | Domy "na zgłoszenie" |
Domy z użytkowym poddaszem > KORONOWO
powrót do listy|
cena: 1845zł
|
zamów projekt |
Widoki
POW. UŻYTKOWA 195.4 m2
POW. MIESZKALNA 101.1 m2
POW. ZABUDOWY 171.8 m2
KUBATURA 760.0 m3
WYSOKOŚĆ BUDYNKU 8.53 m
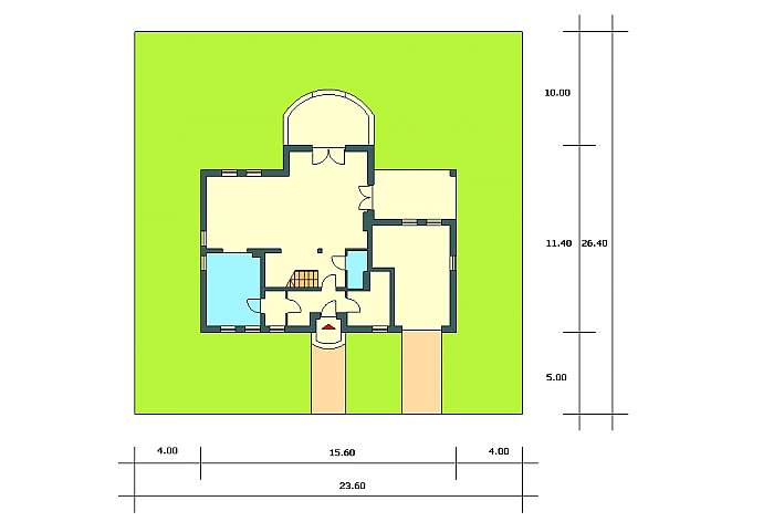
MINIMALNA SZER. DZIAŁKI 23.6 m
ŚCIANY TRÓJWARSTWOWE, CERAMIKA
STROP PŁYTA ŻELBETOWA
DACH WIELOSPADOWY, KĄT NACH. 45,
WIĘŹBA DREWNIANA KROKWIOWO – SŁUPOWA,
POKRYCIE DACHÓWKĄ
KORONOWO to duży dom jednorodzinny z użytkowym poddaszem o ciekawej, klasycznej architekturze, która z powodzeniem wpisze się w każde warunki lokalizacyjne.
Parter KORONOWA to jednoprzestrzenna część dzienno – wypoczynkowa z kuchnią, jadalnią i pokojem rodzinnym z kominkiem oraz część gospodarcza z pomieszczeniem wielofunkcyjnym, spiżarnią, garażem i WC.
Na poddaszy rozmieszczono cztery pokoje sypialne i dwie łazienki.
Rzuty
Elewacje
|
|
ELEWACJA FRONTOWA |
|
|
ELEWACJA BOCZNA |
|
|
ELEWACJA OGRODOWA |
|
|
ELEWACJA BOCZNA |
Działka
|
|
MINIMALNE WYMIARY DZIAŁKI |

