Projekty | Domy parterowe | Domy dla biznesu | Domy letniskowe | Domy "na zgłoszenie" |
Domy z użytkowym poddaszem > TOMASZÓW
powrót do listy|
cena: 1845zł
|
zamów projekt |
Widoki
POW. UŻYTKOWA 252.3 m2
POW. MIESZKALNA 129.4 m2
POW. ZABUDOWY 200.1 m2
KUBATURA 1 107 m3
WYSOKOŚĆ BUDYNKU 8.33 m
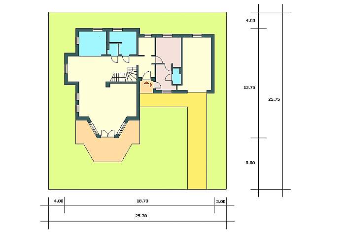
MINIMALNA SZER. DZIAŁKI 25.7 m
ŚCIANY TRÓJWARSTWOWE, CERAMIKA
STROP PŁYTA ŻELBETOWA
DACH WIELOSPADOWY, KĄT NACH. 45,
WIĘŹBA DREWNIANA KROKWIOWO – SŁUPOWA,
POKRYCIE DACHÓWKĄ
TOMASZÓW to duży , komfortowy dom jednorodzinny z wydzieloną częścią do prowadzenia działalności gospodarczej.
Parter TOMASZOWA to część dzienna z przedsionkiem, garderobą, pomieszczeniem wielofunkcyjnym i WC , które tworzą część gospodarczą, oraz hall, kuchnia, jadalnia i pokój rodzinny z kominkiem , które składają się na część dzienno – wypoczynkową. Przedsionek wejściowy prowadzi również do pokoju biurowego z poczekalnią i węzłem sanitarnym. Pomieszczenia te mogą zostać zaadaptowane na niewielki gabinet lekarski, biuro prawne lub rachunkowe, oraz każdą inną działalność w ramach wolnego zawodu.
Poddasze TOMASZOWA to pięć pokoi sypialnych i trzy łazienki. Taki układ wnętrza może zostać wykorzystany na mieszkanie dla dużej, lub dwupokoleniowej rodziny.
Rzuty
Elewacje
|
|
ELEWACJA FRONTOWA |
|
|
ELEWACJA BOCZNA |
|
|
ELEWACJA TYLNA |
|
|
ELEWACJA BOCZNA |
Działka
|
|
MINIMALNE WYMIARY DZIAŁKI |

