Projekty | Domy parterowe | Domy dla biznesu | Domy letniskowe | Domy "na zgłoszenie" |
Domy z użytkowym poddaszem > ŚMIGIELÓW
powrót do listy|
cena: 1845zł
|
zamów projekt |
Widoki
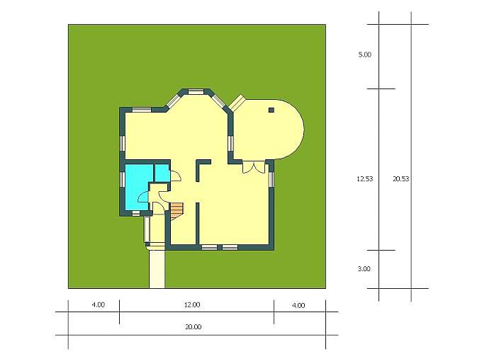
ŚMIGIELÓW to wolnostojący, parterowy dom jednorodzinny z użytkowym poddaszem, przeznaczony dla cztero – pięcioosobowej rodziny.
Na paterze w jednoprzestrzennym wnętrzu rozmieszczono strefę wejściową z sienią, toaletą i pomieszczeniem gospodarczym oraz pokój rodzinny, kuchnie i jadalnię.
Na poddaszu zaplanowano cztery pokoje sypialne i dwie łazienkę.
WIDOK OD OGRODU
WIDOK OD OGRODU
WIDOK OD OGRODU
WIDOK OD ULICY
pow. użytkowa – 180.4 m2
pow. całkowita – 232.6 m2
pow. zabudowy – 135.3 m2
kubatura – 732.8 m3
Rzuty
Elewacje
|
|
ELEWACJA FRONTOWA |
|
|
ELEWACJA OGRODOWA |
|
|
ELEWACJA BOCZNA 1 |
|
|
ELEWACJA BOCZNA 2 |
Działka
|
|
MINIMALNE WYMIARY DZIAŁKI |

