Projekty | Domy parterowe | Domy z użytkowym poddaszem | Domy letniskowe | Domy "na zgłoszenie" |
Domy dla biznesu > ELIZA - apteka
powrót do listy| cena: 1845zł | zamów projekt | 
Widoki
UWAGA !
CZAS OCZEKIWANIA NA DOKUMENTACJĘ – 4 TYGODNIE OD DNIA ZAMÓWIENIA.
Powierzchnia użytkowa  –  124.6 m2
Minimalna pow. działki  –  478.0 m2
ELIZA
Samodzielny, parterowy, wolnostojący budynek usługowy o współczesnej architekturze, przeznaczony na aptekę z pełnym zapleczem.
Rzuty
Elewacje
|  | ELEWACJA FRONTOWA | 
|  | ELEWACJA BOCZNA | 
|  | ELEWACJA TYLNA | 
|  | ELEWACJA BOCZNA 2 | 
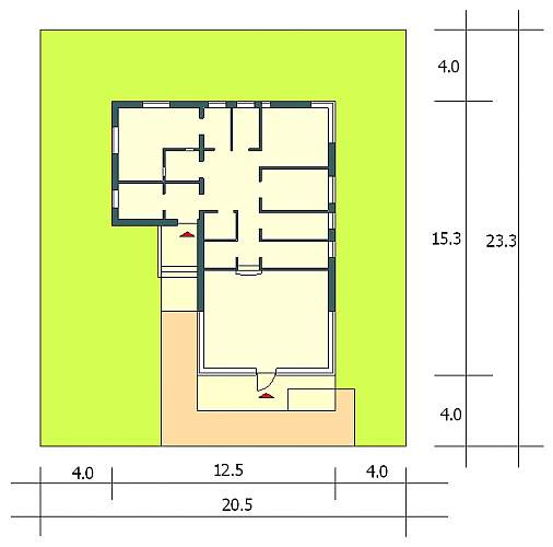
Działka
|  | MINIMALNE WYMIARY DZIAŁKI | 

