Projekty | Domy z użytkowym poddaszem | Domy dla biznesu | Domy letniskowe | Domy "na zgłoszenie" |
Domy parterowe > OSTRÓDA
powrót do listy|
cena: 1476zł
|
zamów projekt |
Widoki
UWAGA!
CZAS OCZEKIWANIA NA DOKUMENTACJĘ – 4 TYGODNIE OD DNIA ZAMÓWIENIA.
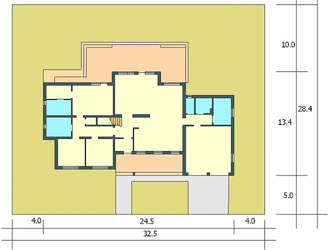
POW. UŻYTKOWA 209.7 m2
POW. ZABUDOWY 255.4 m2
KUBATURA 961.1 m3
WYSOKOŚĆ 4.55 m
MINIMALNA SZER. DZIAŁKI 32.5 m
ŚCIANY DWUWARSTWOWE: BLOCZKI KOMÓRKOWE 24 CM + STYROPIAN 12 CM
STROP ŻELBETOWY
DACH PŁASKI
POKRYCIE BITUMICZNE
OSTRÓDA to duży, wygodny , parterowy dom jednorodzinny o współczesnej architekturze.
Część centralna to strefa wejściowa wiatrołapem i holem oraz pokój rodzinny, kuchnia i jadalnia.
Prawa część budynku to strefa gospodarcza z dwustanowiskowym garażem, wielofunkcyjnym pomieszczeniem gospodarczo – technicznym, spiżarnią i WC
natomiast część lewa składa się z trzech pokoi sypialnych i dwóch łazienek.
Rzuty
Elewacje
|
|
ELEWACJA FRONTOWA |
|
|
ELEWACJA BOCZNA |
|
|
ELEWACJA TYLNA |
|
|
ELEWACJA BOCZNA 2 |
Działka
|
|
MINIMALNE WYMIARY DZIAŁKI |

