Projekty | Domy parterowe | Domy dla biznesu | Domy letniskowe | Domy "na zgłoszenie" |
Domy z użytkowym poddaszem > KRUSZWICA
powrót do listy|
cena: 1845zł
|
zamów projekt |
Widoki
UWAGA!
CZAS OCZEKIWANIA NA DOKUMENTACJĘ – 3 TYGODNIE OD DNIA ZAMÓWIENIA.
KRUSZWICA
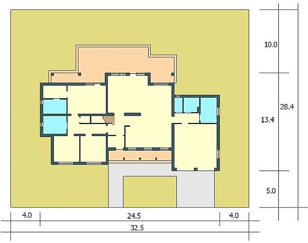
Powierzchnia użytkowa – 209.7 m2
Minimalna powierzchnia działki – 922.0 m2
Kruszwica to duży, wygodny , parterowy dom jednorodzinny z możliwością adaptacji poddasza na dodatkowe pomieszczenia mieszkalne.
Widoczny jest czytelny podział na cześć dzienną – wspólną dla wszystkich domowników , sypialną i gospodarczą.
Rzuty
Elewacje
|
|
ELEWACJA FRONTOWA |
|
|
ELEWACJA BOCZNA |
|
|
ELEWACJA TYLNA |
|
|
ELEWACJA BOCZNA 2 |
Działka
|
|
MINIMALNE WYMIARY DZIAŁKI |

